22 Logements Traversants
B3Q6 — 2023-2024
- Nom du cours Synthèse - Du territoire au détail 2023-2024 (ARCH3335-1)
- Nom de(s) (l')étudiant(s) Yasmina Lgana, Elise Bille
- Situation Belgique, Herstal
- Sujet architecture , durabilité , paysage , structure
- Fonction commercial , résidentiel , sport/loisir
- Type de production axonométrie , coupe , croquis , plan
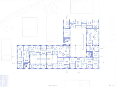
Le projet convertit un bâtiment industriel des Hauts Sarts en un logement collectif modulable. L’objectif est de redonner une échelle plus humaine à ce contexte industriel tout en ayant une approche vis-à-vis des futurs défis liés à l’eau comme la nécessité de stocker l’eau pour la redistribuer ultérieurement. La figure dévoile des zones perméables qui seront alimentées par l’eau récoltée sur certaines toitures.
Dans ce contexte, le projet cherche également à acquérir une certaine autonomie en mettant en place un bassin de stockage alimentant des permacultures autour du logement. Celles-ci créent un jeu de pleins et de vides en lien avec la forme du bâtiment composée de deux patios intérieurs. Le bâtiment intègre un espace commun central avec une grande cuisine reflétant le thème de la “cuisine partagée” ainsi qu’une salle d’étude et un magasin.
Les logements, inspirés des bureaux Maio et Summacumfemmer, sont modulables et traversants, avec une configuration diagonale permettant un flux dans les espaces. Les pièces de vie traversantes sont centrales dans chaque unité, notamment la cuisine partagée entre deux unités. Des cloisons légères peuvent refermer ces espaces pour plus d’intimité. Les chambres peuvent être “données” à une autre unité selon les besoins des résidents.
L’enveloppe du bâtiment a été retravaillée, en préservant la structure en béton et en acier, ainsi que deux façades vitrées. Certains hourdis des toitures démontées sont récupérés pour marquer les entrées sur les façades. Pour adopter une approche durable, les façades et les escaliers sont réalisés en pisé (inspiré par Martin Rauch).