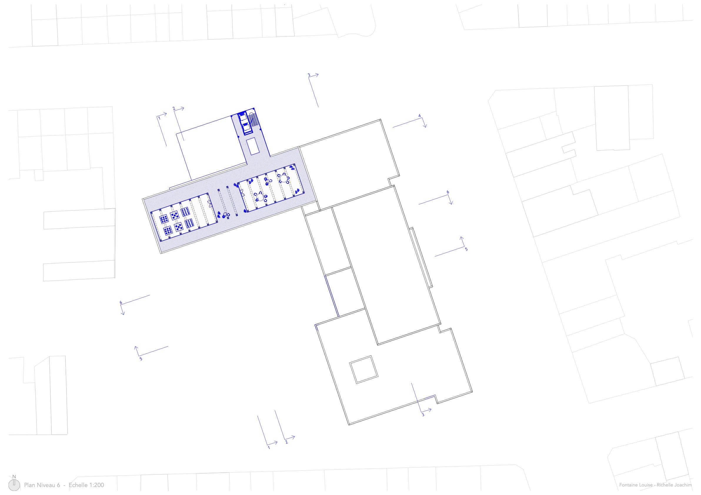
Reconversion de l’ancienne commune d’Etterbeek
M1Q2 — 2023-2024
- Nom du cours Reconversion "Rethink, resettle, reconfigurate" 2023-2024 (ARCH0575-1)
- Nom de(s) (l')étudiant(s) Louise Fontaine, Joachim Richelle
- Situation Belgique, Etterbeek
- Sujet architecture
- Fonction administratif/tertiaire , résidentiel
- Type de production axonométrie , coupe , croquis , détail , élévation , maquette , photo , plan
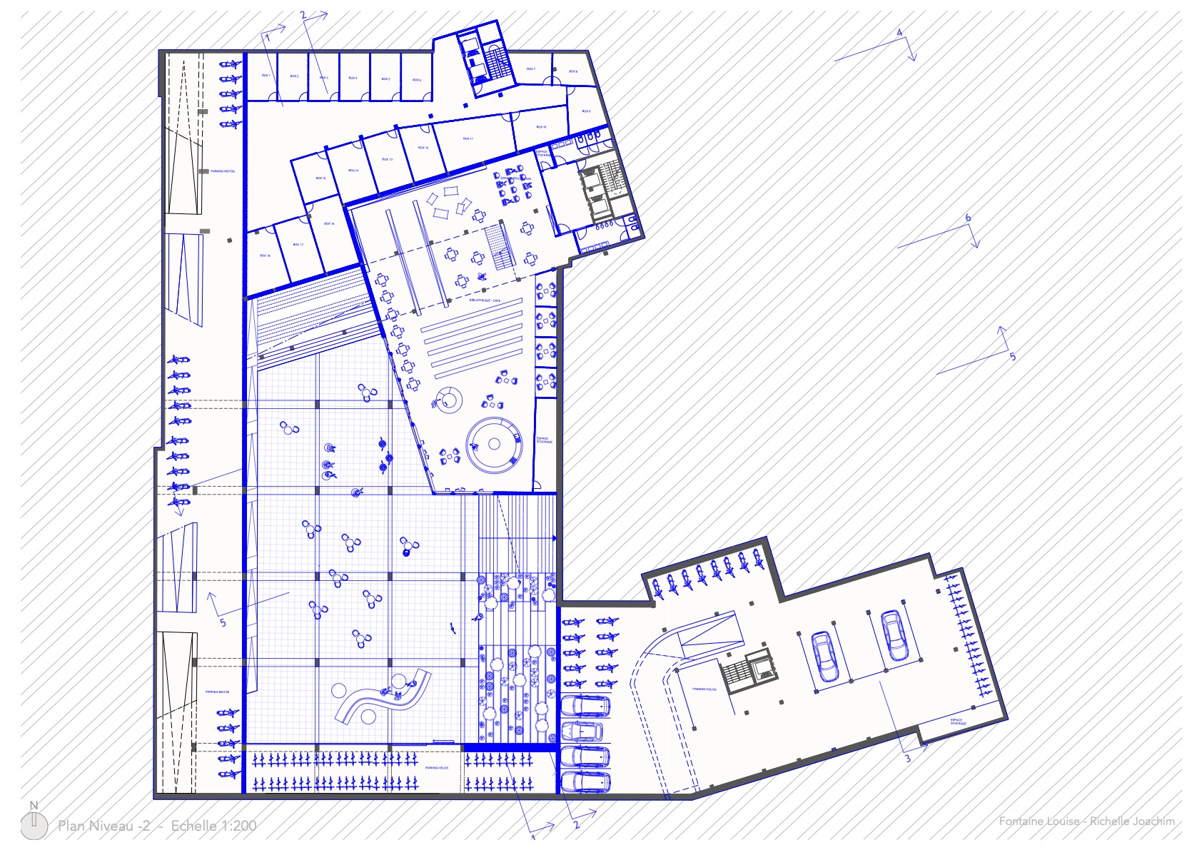
Le parc industriel des Hauts-Sart est entouré de cultures : grâce à une approche globale, une continuité dans le paysage se dessine en transformant la production industrielle originelle en production agricole. Sur la parcelle, cela s’exprime par l’implantation de vergers.
La durabilité est le moteur du projet : à l’échelle de la parcelle, les vergers remplacent les zones d’asphalte, facile à démolir. Les zones bétonnées sont conservées mais peuvent disparaître en cas de non utilisation ou d’agrandissement de production. A l’échelle du bâtiment, l’existant est conservé pour la partie production/commerce car son échelle est compatible avec la fonction industrielle d’origine ; toutefois, la partie résidentielle nécessite un changement d’échelle : la structure en acier est démontée et inscrite dans un inventaire pour la modifier tout en assurant le moins de pertes possibles. La structure réutilisée prend la forme d’une construction en hauteur, permettant de réduire l’imperméabilisation des sols. Pour satisfaire la demande du nombre de logements, la structure en acier est complétée par une structure en bois, légère et écologique. A l’échelle plus zoomé sur les logements, ceux-ci s’insèrent dans la structure sans l’interrompre ou la modifier afin d’anticiper un possible changement de fonction. Les logements se composent de cellules plus ou moins ouvertes et publiques, pouvant se combiner : les paliers sont communs et accueillent une cuisine partagée, les cellules de logement vitrées sont conçues comme des espaces de vie ou de travail et les cellules fermées contiennent les espaces intimes. Les divers modes d’habiter et formes de ménages sont envisagés.