S’élever pour rassembler
M2Q4 — 2023-2024
- Nom du cours Ateliers Relectures 2023-2024 (ARCH0586-1)
- Nom de(s) (l')étudiant(s) Pierre Bruneau, Charles Paree, Bryan Crappe
- Situation Espagne, Pontevedra
- Sujet architecture , patrimoine , structure
- Fonction autre , culturel , éducatif , résidentiel , tourisme
- Type de production autre , axonométrie , carte , coupe , détail , élévation , maquette , photo , plan , schéma
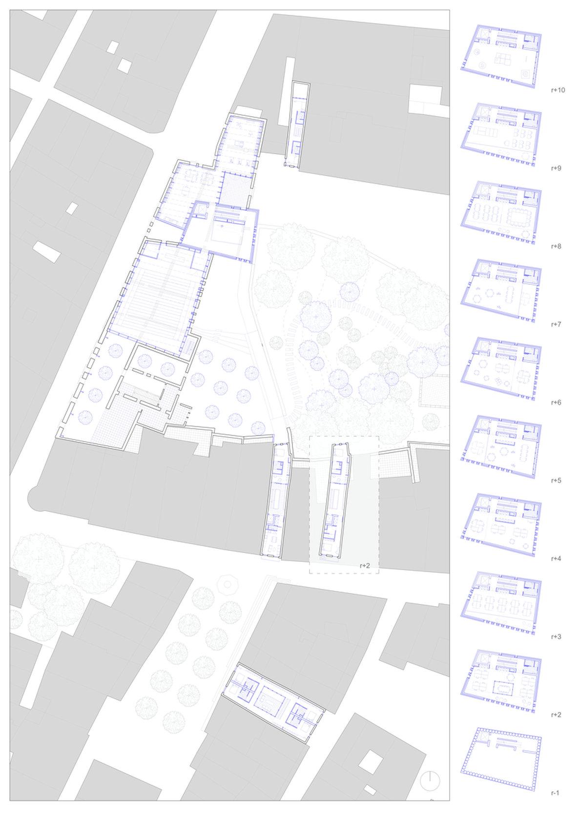
Le Signal; Le projet réinvente un espace historique, intégrant passé, présent et futur, en préservant son essence. La tour, symbole de dialogue, réactualise les anciens codes architecturaux. Utilisant la pierre, notre projet préserve et valorise les éléments historiques tout en créant de nouveaux espaces harmonieux avec la ruine existante. Le signal devient la matérialisation d’un changement de paradigme socio-culturel.